项目面积:改造前58.5平米(委托户32平米,邻居9.5平米,公共空间17平米)
设计周期:2015年05月04日 – 2015年07月10日
施工周期:2015年05月18日 – 2015年07月29日
主要材料:钢材、老木板、刚化玻璃、陶瓷薄板、复合地板、软木地板、实心玻璃砖、乳胶漆、木器漆。
本案的设计改造千丝万缕、牵一发而动全身,16稿的设计方案里每一条铅笔线皆夹杂着周家人与建筑、家族历史、人文情怀、亲情之间的爱恨交错。
A:项目依靠三面邻居墙面建造而成,结构脆弱,楼板为年代久远的老木板,且木板厚度仅为1.2厘米;
B:委托人周渊,自幼患有血友病,双腿逐渐不良于行,不但日常生活很难自理,也无法外出工作,家庭重担完全 落在女主人一人身上;
C:全家仅有两间卧室,小孩没有独立空间和床位,周渊的父亲为了儿子能够得到适当的休养,让床位给小孙子并长期屈身睡于衣柜之中;
D: 两户关系紧张,共用一条楼梯,并穿越彼此的公共和私密空间,造成两户人家在空间使用上的很大困扰;
E:通过狭长陡峭又蜿蜒的楼梯通往二层半的卧室为邻居阿姨和儿子的卧室,空间不足。
住房三面墙面皆为邻居家外墙,仅临大门的墙面为周家自建而成,墙面宽1.8米,窗户窄小,通风、采光皆不足
两户共用的室外天井采光不足,天井从三层贯穿至一层的走道让走道空间处于半户外状态,下雨天雨水直接洒落于室内,也间接造成室内空间蟑螂、老鼠横穿;
在入口设计中将一层入户门一分为二,彼此纠缠的两户空间从入口大门处即彻底切割分离
为减缓上下楼的压力,一层台阶下方设置多个不同收纳空间,剩余空间置入了厨房
考虑到男主人身体的特殊原因,行动不便且需要绝对的安全,在本不大的空间设了一组液压电梯于委托户住宅内,方便委托人和年老的父母亲能安全上下不同楼层
为小孩子营造的独立空间,并充分考虑到不同年龄阶段的空间使用功能
对于一位从没拥有自己卧室和床铺的小孩来说,小孩手绘了自己幻想的卧室场景的画,而我们以老木板做画框,以不同颜色的卡纸剪切拼贴还原小孩对卧室的画作,并将幻想的空间画作置于真实的小孩卧室之中。




原始一层平面图



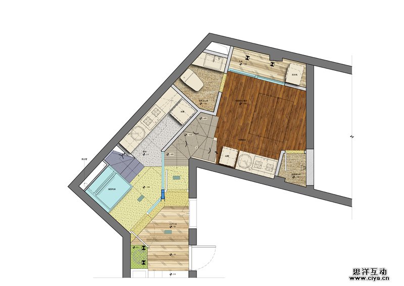
一层平面图
二层平面图
三层平面图






















多功能椅





